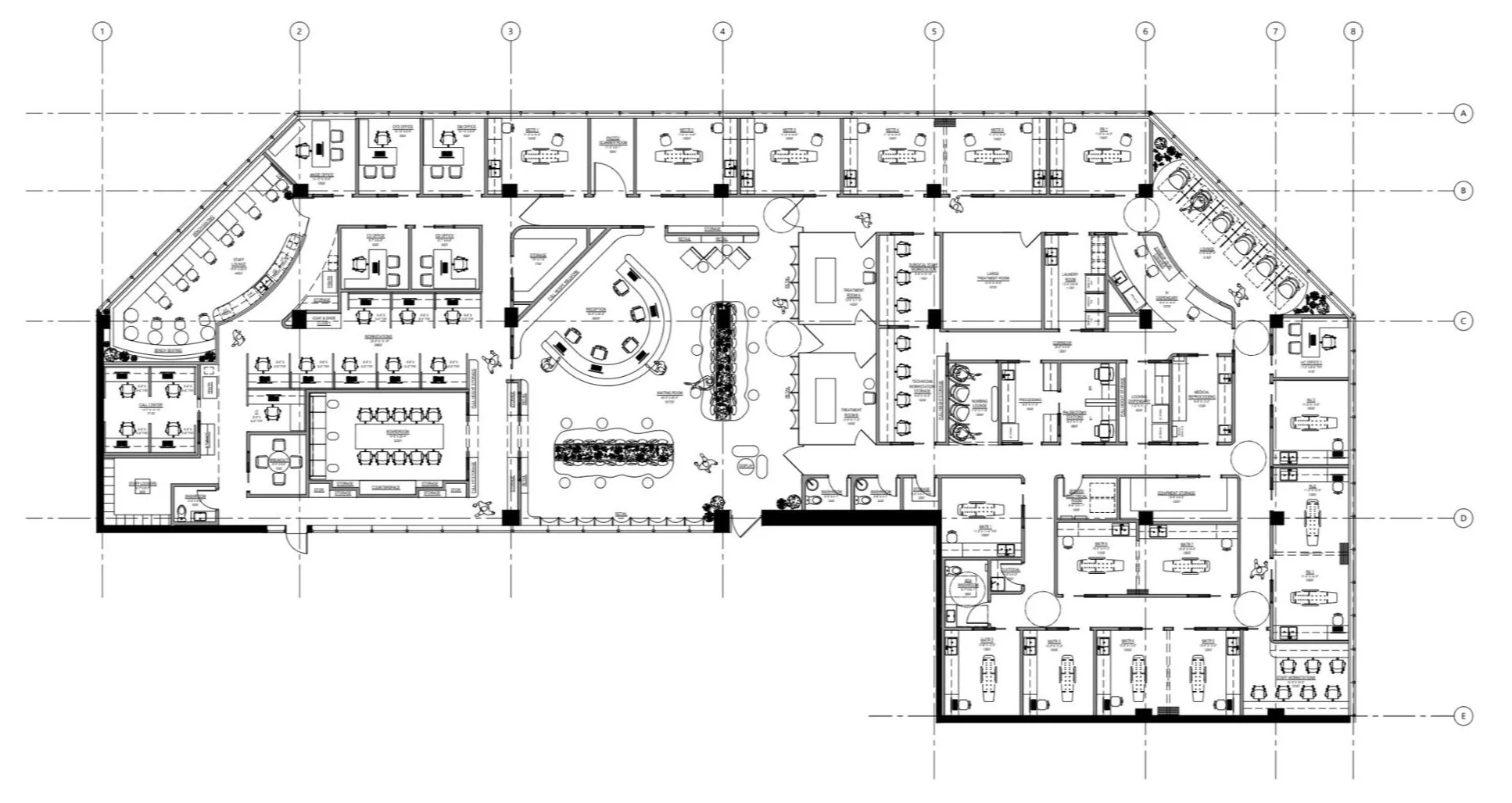
WELLNESS
Medispa
LOCATION
Vancouver
AREA
10,000 square feet
Project Overview
Envisioning a medical treatment space that leans into the experience of a spa, enveloping each patient, doctor and practitioner into comfort.
This space leads its company into the future of what medical treatments could feel like. Soft curves, matte finishes, mute palettes and natural references come together to create the design for this local medi spa.
*Renderings created in-house for conceptual client viewing
Featured Projects
Mine & Yours Luxury Resale
Oro Trattoria
Pyro Wood Fired Kitchen and Bar
Executive Office
Kanu Cafe
Medispa

