Maclab
LOCATION
Edmonton
Project Overview
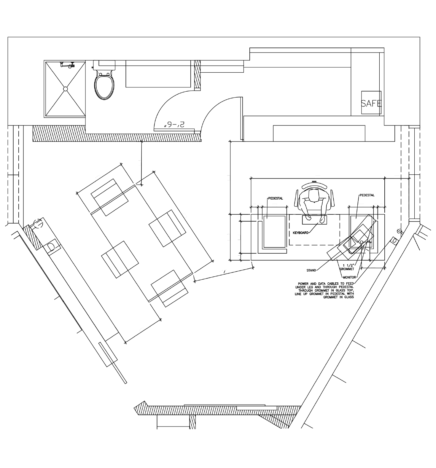
An homage to the client’s love for cars, the design for the millwork cabinetry and typical office desk adorn racing stripes in the striking colour of orange, against materials of dark wood and glass.
Featured Projects
Mine & Yours Luxury Resale
Oro Trattoria
Pyro Wood Fired Kitchen and Bar
Executive Office
Kanu Cafe
Medispa

